ZpětÚvodNemovitosti Praha-východHotely, penzióny, restaurace Praha-východProdej hotely, penzióny, restaurace Praha-východProdej restaurace Praha-východProdej restauračního zařízení Hospoda u Bendů, k využití 260 m2, pozemek 861 m2, Zápy u Brandýsa n.L
Prodej restauračního zařízení Hospoda u Bendů, k využití 260 m2, pozemek 861 m2, Zápy u Brandýsa n.L
Záložky
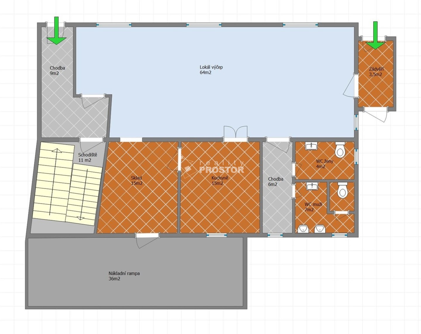
Nabízíme k prodeji stavbu občanského vybavení dříve využívanou jako restaurační zařízení "Hospoda u Bendů" s příslušenstvím a jednotkou 5+1, na pozemku 861 m2, městys Zápy u Brandýsa nad Labem.
Popis nemovitosti
Nemovitost se zastavěnou plochou 214 m2 a užitnou plochou 260 m2 se nachází při hlavní silnici v obci. V přízemní objektu je bývalá provozovna 135 m2 s výčepem 64 m2, kuchyní, skladem, sociálním zařízením a rampou v zadní části. Poschodí má vlastní vchod a je aktuálně rozděleno na 5 místností, kuchy...
| Cena: | 12.850.000 Kč(za nemovitost)s provizí RK |
|---|---|
| Lokalita: | Zápy, Praha-východ, Středočeský |
| Stav nabídky: | aktuální |
| Číslo: | 11635 |
| Typ reality: | Restaurace - Hotel, penzión, restaurace |
| Plocha: | 861 m2 |
Kontakt na makléře
Vlastnosti nemovitosti
| Dálnice: | Ano |
|---|
| Topení tuhá paliva: | Ano |
|---|---|
| Topení ústřední: | Ano |
| Kanalizace: | Ano |
| Studna: | Ano |
| Vlastní vodní zdroj: | Ano |
| Vodovod: | Ano |
| Elektro 400V: | Ano |
| Sklep: | Ano |
|---|
| Počet parkovacích míst: | 3 |
|---|---|
| Rok výstavby: | 1994 |
| Počet bytů v domě: | 1 |
| Počet podlaží pod zemí: | 1 |
| Celkový počet podlaží: | 2 |
| Umístění objektu: | rušná část obce |
| Poloha objektu: | rohový |
| Stav objektu: | před rekonstrukcí |
| Technologie výstavby: | smíšená |
| Plocha pozemku: | 861 |
|---|---|
| Zastavěná plocha: | 214 m2 |
| Užitná plocha: | 260 m2 |
| Plocha obchody: | 64 m2 |
| Plocha kanceláře: | 130 m2 |
| Plocha zahrada: | 352 m2 |
| Plocha sklep: | 35 m2 |
| Plocha terasa: | 48 m2 |
| Plocha balkón: | m2 |
| Třída energetické náročnosti budovy: | G - Mimořádně nehospodárná |
|---|
Doplňující obsah
Nabídka nemovitosti
Rychlý kontakt
Reality PROSTOR
Tel.: +420 281 910 232
Tel.: +420 736 490 314
info@realityprostor.cz
Sídlo:
Chlumecká 1539/7
198 00 Praha 9
Tel.: +420 281 910 232
Tel.: +420 736 490 314
info@realityprostor.cz
Sídlo:
Chlumecká 1539/7
198 00 Praha 9
Novinky
Novinky na Facebooku
Nabízíme vám možnost skvělé pracovní pozice!
Do našeho týmu hledáme posily!
Měření radonu
Realitní kancelář Reality PROSTOR Praha nabízí zprostředkování služby Měření radonu.
© 2026, Reality PROSTOR s.r.o. – všechna práva vyhrazena
Prohlášení o přístupnosti | Ochrana osobních údajů | Mapa stránek
Realitní software dodává eBRÁNA | Software a informační systém pro realitní kanceláře REAlBrána | Nabídka nemovitostí RB Reality





























